On behalf of Australian Professional Shopfitters I designed and documented Ted's Camera stores in Werribee, Southlands, Knox, Brisbane, Canberra Centre, Chermside, Doncaster, Highpoint and Pitt St Sydney. Here is a small sample of visuals and documentation.
Client Australian Professional Shopfitters / Visuals, documentation, graphics Chris Storey

Ted's Werribee Plaza: Shopfront visual

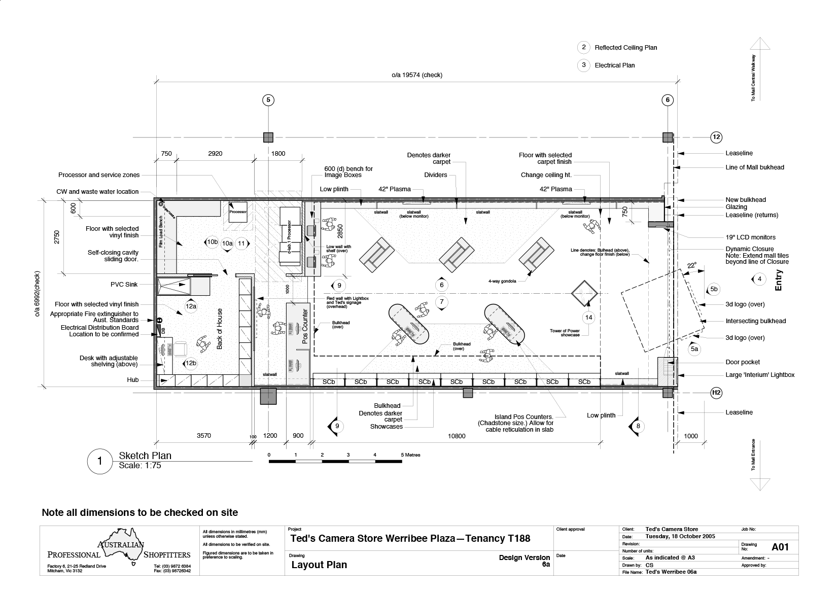
Ted's Werribee Plaza: Plan

Ted's Werribee Plaza: Shopfront elevations

Ted's Highpoint: Visual

Ted's Highpoint: Plan

Ted's Highpoint: Shopfront elevation

Ted's Highpoint: Shopfront details

Ted's Doncaster: Shopfront visual

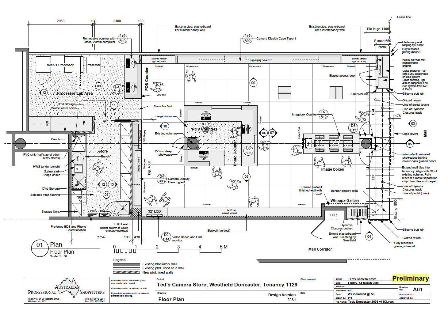
Ted's Doncaster: Plan

Ted's Doncaster: Shopfront elevations

Ted's Doncaster: Counter isometric

Back to Top